Partenariat avec le CDN Nanterre-Amandiers
DNMADE 2 Design Espace - parcours Patrimoine et médiation culturelle.
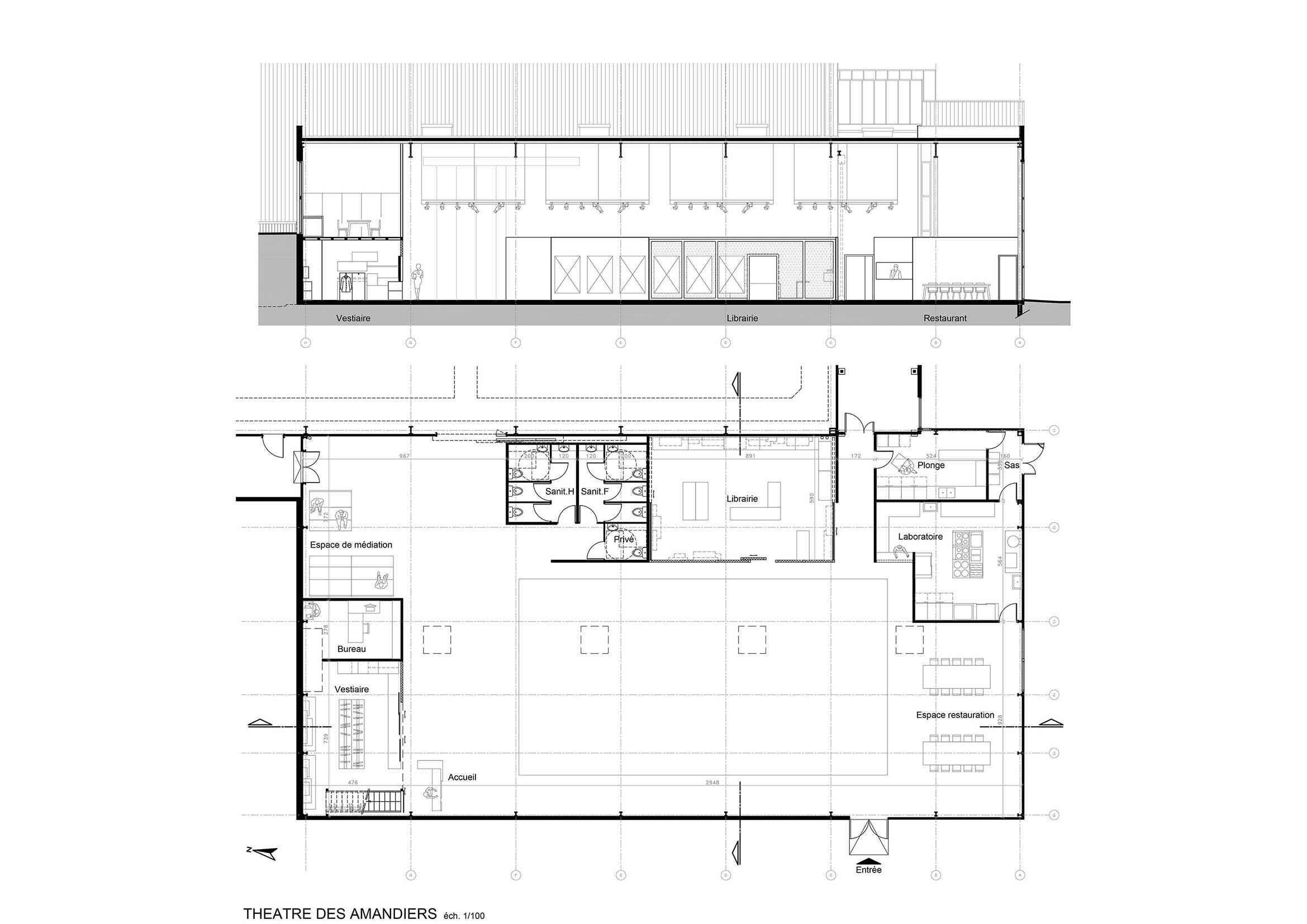
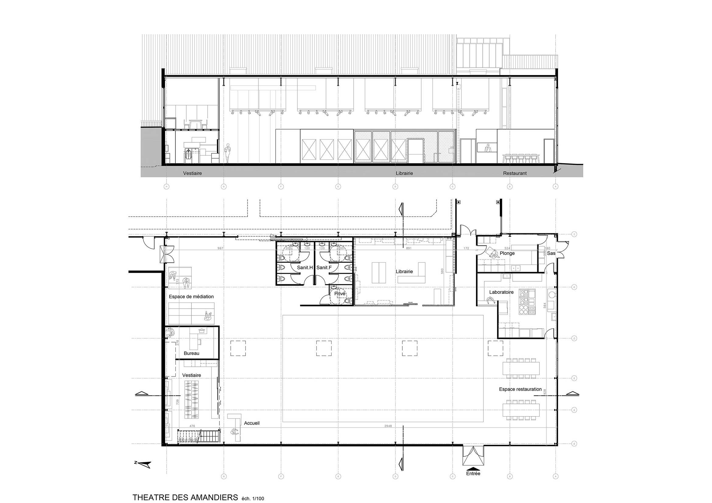
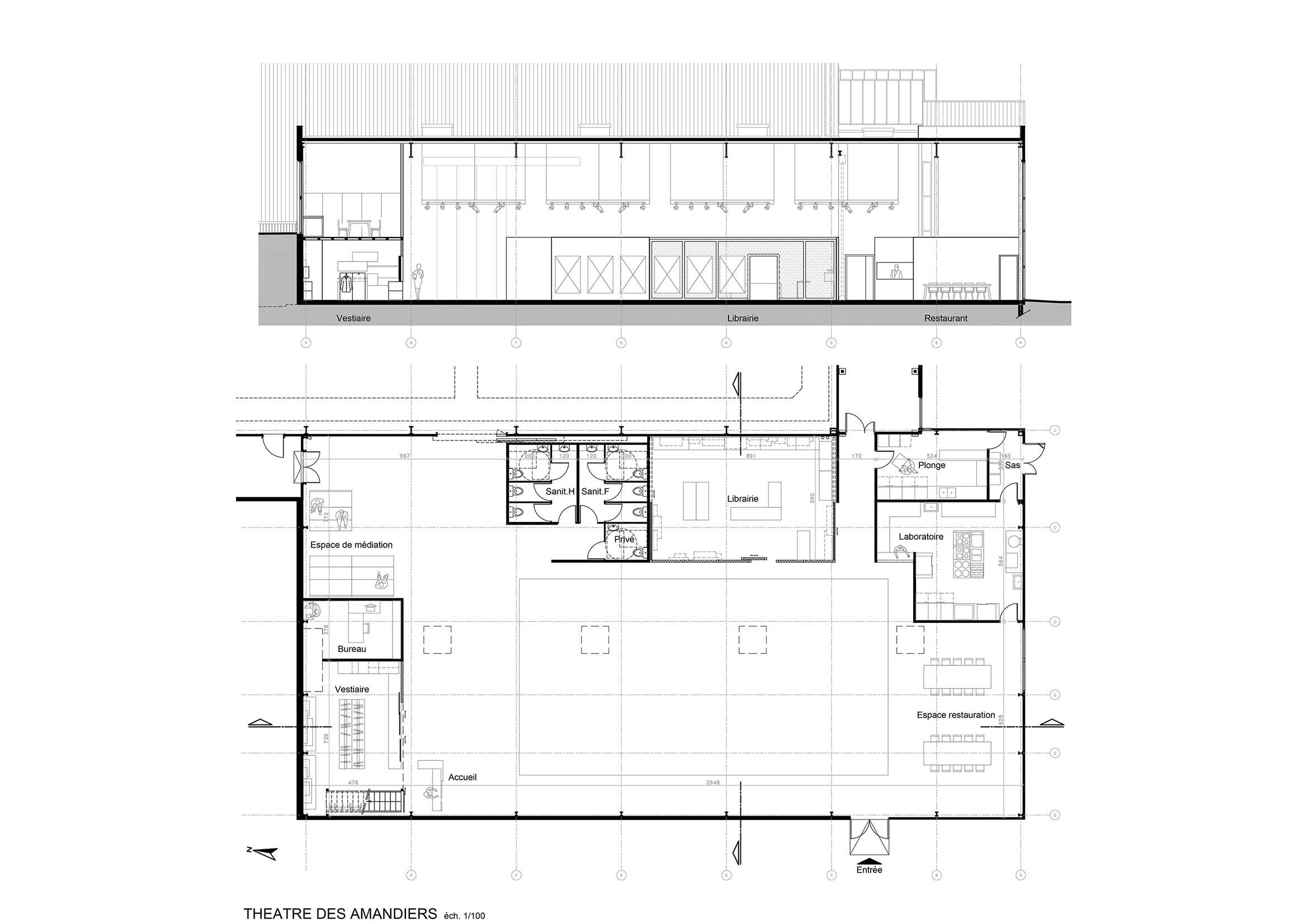
Pendant les travaux de réhabilitation du Théâtre Nanterre-Amandiers, une salle provisoire de spectacle doit être installée dans un bâtiment adjacent. Les étudiants de DNMADE 2 Design d'Espace « Patrimoine et médiation culturelle » devaient réfléchir à la conception du hall temporaire destiné à accueillir le public (billetterie, espace de restauration, librairie, vestiaires, bureaux).
La mise en place de ce projet s’est faite en étroite collaboration avec les équipes du théâtre Nanterre-Amandiers. Les étudiants ont eu le privilège :
- de visiter le théâtre, de comprendre son projet artistique et les missions d’un CDN ;
- de rencontrer les équipes (libraire, responsables du restaurant, chargée de la billetterie) afin de préciser le programme architectural ;
- d’avoir une présentation des ateliers de construction des décors ainsi que des espaces scéniques par le régisseur lumière ;
- d’assister à la première d’un spectacle au mois de septembre ;
- de restituer leurs projets en décembre à Élissa Kollyris - Chargée des relations avec les publics - et Ivan Assaël - Responsable des ateliers de construction.
		© 2025, ensaama.net
		Mentions légales
	
	
	
    








